Close
首頁
房屋出售
房屋出租
社區大樓
土地查詢
委託買賣
公司簡介
精英團隊
人才招募
不動產知識
google查詢
台南市鹽水區透天
首頁
房屋出售
房屋出租
社區大樓
土地查詢
委託買賣
公司簡介
精英團隊
人才招募
不動產知識
google查詢
首頁
›
房屋出售
›
台南透天
›
鹽水透天
›
台南市鹽水區透天
台南市鹽水區透天|盬水透天盬水房屋台南房屋南科房屋買賣
售
盬水溫馨車墅・學區旁全新翻新宅
列印
售1180萬
類型:
透天
總登記坪數:
20.27坪
每坪單價:
58.21萬/坪
地址:
台南市鹽水區忠孝路
王麗梅
(煩請告知聯絡人,您是在House-Info房屋網看到廣告,感恩幫忙)
0960-559-835
市話:
0960559835 (06-5890559)
公司名稱:
大台南不動產新市店
公司地址:
台南市新市區仁愛街183號
我要留言
加LINE好友
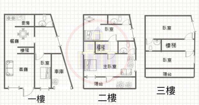
物件介紹
詳細資料
銷售狀態
:
帶看中
格局
:
5房,1廳,4衛,2陽台,1廚房
屋齡
:
49年
車位
:
一樓平面車位
座向
:
朝西
無障礙環境
:
沒有
所在樓層
:
0
管委會
:
沒有
中庭
:
沒有
電梯
:
未知
面前道路
:
5
面寬
:
10.5
縱深
:
11~14
邊間
:
是
是否凶宅
:
不是
瀏覽人次
:
132人次
周邊環境
公園綠地
:
月津港親水公園
鄰近學區
:
鹽水國小,鹽水國中,明達國中
坪數說明
建物登記總坪數
:
20.27
主建物
:
20.27
土地登記總坪數
:
23.44
特色描述
✨
物件亮點
・整棟翻新、水電管線全面更新,免整修即可入住
・廚房中島設計,讓烹飪不只是料理,更是家人間的互動時光
・每間衛浴皆有開窗,採光通風佳、乾爽又衛生
・一樓設有孝親房,長輩起居方便,三代同堂好貼心
・大面寬格局,空間方正好利用,動線流暢、生活舒適
🌸
生活機能
・位於盬水國小、盬水國中學區旁,孩子上下課安全又便利
・巷口就是7-11,日常採買超方便
・近中山高速公路、台19線,南來北往交通便捷
・鬧中取靜環境佳,兼具生活機能與居住品質
💡
適合對象
✔ 想讓家人舒適生活的換屋家庭
✔ 重視屋況、希望直接入住的買方
✔ 退休返鄉、或在地自住的理想首選
🏠
這是一棟有故事、有溫度的家,讓您一走進就能感受到家的歸屬感。
歡迎您的蒞臨賞屋
(
地
)
歡迎您電洽:
0960-559-835
歡迎加
LINE ID 0960559835
更多房屋資訊歡迎
google
搜尋
~
點我
➤
House-Info
http://www.0960559835.com/
點我
➤
我的粉絲專頁
看更多台南房地
產
新聞
https://www.facebook.com/May0960559835/?ref=pages_you_manage
大台南不動產新市南科店
以上資訊如有登記錯誤,以登記簿謄本及合約書為主
經紀人:蔡嘉玲
(93)
南市字第
00178
號
尚盈不動產有限公司
台南市新市區仁愛街
183
號
在地堅強陣容
打破品牌迷思、在地用心經營
您的真心託付、我們用心服務
急缺農、建、工業地、透天車墅、公寓大樓
一流的團隊、快速的成交、安全交易買賣有保障
馬上來電委託
~
租售均有服務
~
代租屋 代管理皆可
#
南科房屋買賣
#
善化土地
#
南科土地
#
南科買房
#
善化買地
#
善化投資
#
南科投資
#
南科房屋買賣
台南鹽水透天-0
台南鹽水透天-1
台南鹽水透天-2
台南鹽水透天-3
台南鹽水透天-4
台南鹽水透天-5
台南鹽水透天-6
台南鹽水透天-7
台南鹽水透天-8
台南鹽水透天-9
台南鹽水透天-10
台南鹽水透天-11
台南鹽水透天-12
台南鹽水透天-13
台南鹽水透天-14
物件留言
請注意,如果您詢問的內容與物件不相符合或是廣告,經過審核,系統將會直接刪除您的發問內容
住宅分類
七股透天
下營透天
大內透天
山上透天
中西區透天
仁德透天
六甲透天
北門透天
北區透天
左鎮透天
永康透天
玉井透天
白河透天
安平透天
安定透天
安南透天
西港透天
佳里透天
官田透天
東山透天
東區透天
南化透天
南區透天
後壁透天
柳營透天
將軍透天
麻豆透天
善化透天
新化透天
新市透天
新營透天
楠西透天
學甲透天
龍崎透天
歸仁透天
關廟透天
鹽水透天
免責聲明:House-Info房屋網平台系統為租用式開放房屋買賣網站建置平台,僅提供會員查詢-
台南市
,
鹽水區
,
透天
-等房屋資訊參考,並不涉入任何諮詢、交易。 物件(服務)聯絡人公佈的資訊、文字、照片、圖形、產權、廣告內容、或其他資料若有不實或違法情事,或與客戶聯絡交易過程中若衍生民事或刑事等法律問題,皆與House-Info房屋網站無關,所有商標、文章、名稱等版權,皆歸屬原著作者所有!
台南房屋
|
台南市房子
|
台南房子
|
買台南房屋
|
台南市房屋
|
台南買房子
資料處理中,請稍後...